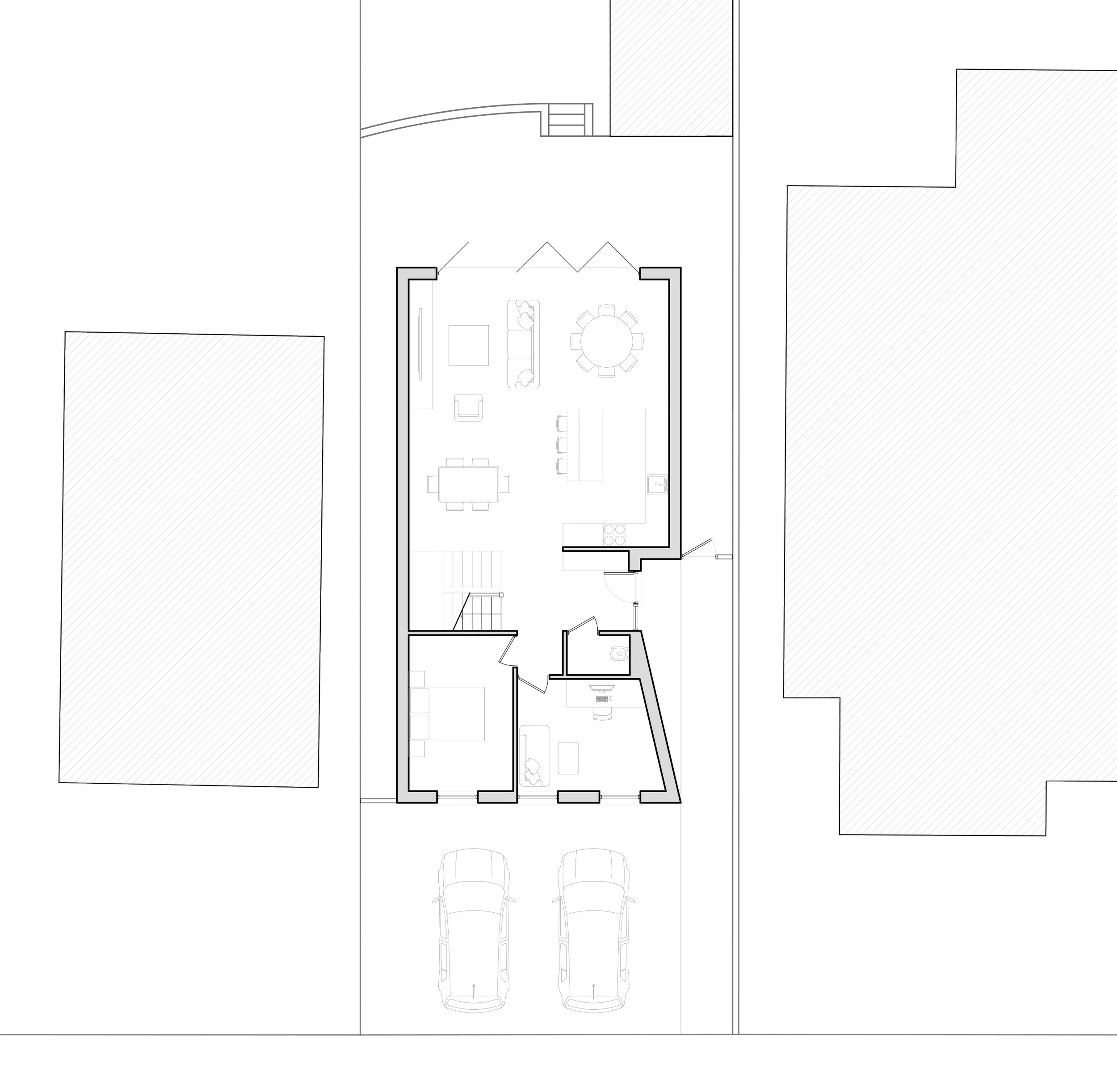
Project Type : Replacement new build house
Location : Mill Hill, London
Client : Private
Status : Pre-Planning
Project Type : Replacement new build house
Location : Mill Hill, London
Client : Private
Status : Pre-Planning